市人民医院河西分院门急诊楼屋顶增建空调机房批前公示
依据《关于城乡规划公开公示的规定》等相关规定,现将该方案进行公示,征询公众意见。如有意见者,请以纸质或者电子邮件形式与我局联系。
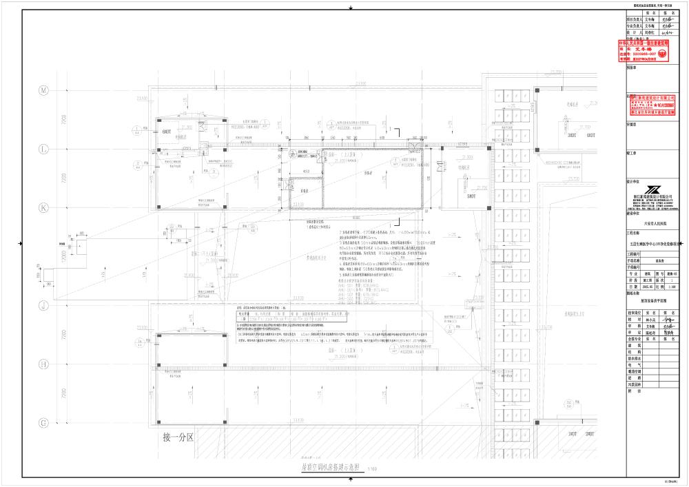
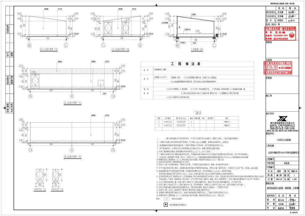
一、项目概况
市人民医院在河西分院门急诊楼五层建设辅助生殖中心项目,需要配套建设恒温恒湿的实验室,为确保实验室的空调外机不受雨水日晒侵蚀,医院申请在五层屋顶新建一间约长16.5米、宽3.6—7.2米、高4米的轻钢结构空调机房。设计单位已出具机房荷载满足原急诊楼设计要求的说明。
二、公示地点
1.六安市自然资源和规划局网站:http://zrzy.luan.gov.cn/ “规划批前公示”栏目。
2.项目现场。
三、公示时间
2025年6月9日—2025年6月17日
四、联系方式
1.联系单位:六安市自然资源和规划局
2.邮寄地址:六安市佛子岭路与八公山南路交叉口市自然资源和规划局建设项目规划科
3.电子邮箱:121197499@qq.com
4.邮编:237000
5.电话:0564-3908899



标签:
关联信息
智能问答
首页
政务资讯
信息公开
办事服务
互动交流
规划计划 
皖公网安备 34150202000128号